For Sale
£180,000 Guide Price

Wincanton, Somerset

  • Ref: d25c318c-db6e-4178-9f7b-353a96f3b5fc
  • Availability: For Sale
  • Tenure: Freehold
Superb town centre site with full planning for 3 stylish new-build homes....
BOOK A VIEWING

Key Features

  • Full Recent Planning Approval
  • Three residential Dwellings
  • Freehold
  • Prime Town Centre Location


Full property description


Superb town centre site with full planning for 3 stylish new-build homes.

The Approval:

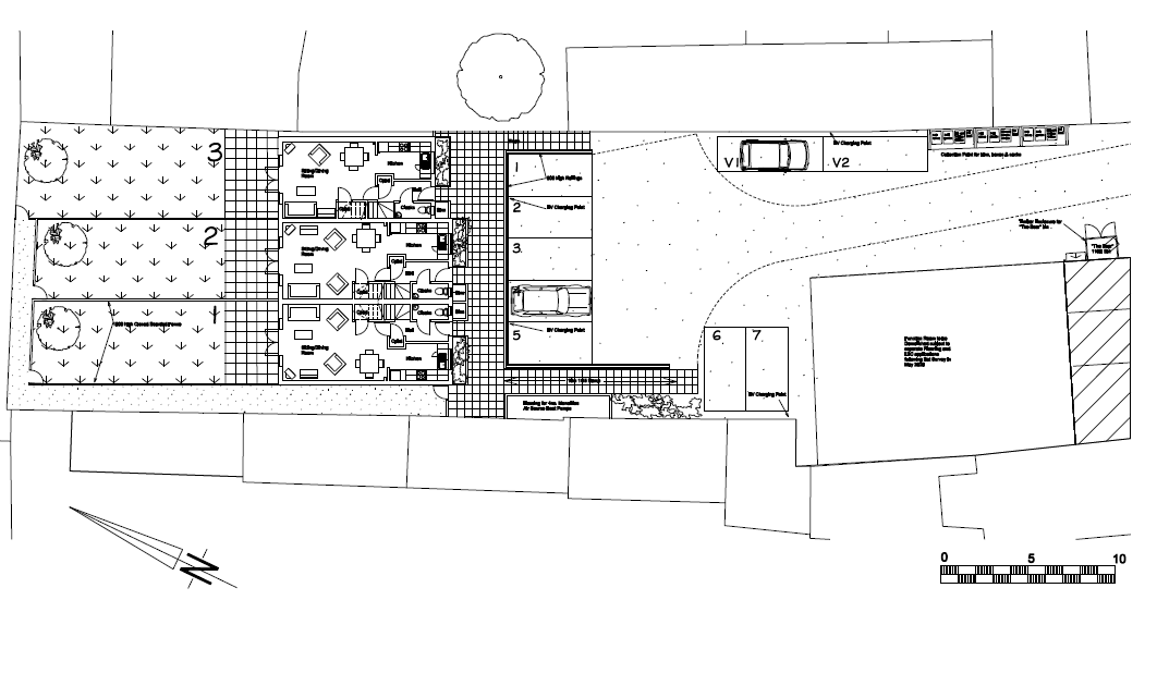
Full planning consent has been granted for the construction of three high-quality new residential dwellings to the rear of The Bear Inn, Wincanton. The approved scheme comprises two 3-bed homes and one 2-bed home, each designed with traditional materials, private gardens and allocated parking. An energy-efficient design including air-source heat pumps, with provision for photovoltaic panels as outlined in the supporting planning documents.

The Current Site:

A private and enclosed courtyard located behind the Grade II listed Bear Inn. A former Carpark, the site consists mainly of hardstanding with tall boundary walls, forming a rare and discreet town-centre development plot within Wincanton’s conservation area.

Site Area:

Approximately 600 SQM

Location:

Located directly off Wincanton Market Place, the site benefits from a prime central position with immediate access to amenities, services and transport links. An attractive, walkable location in the historic heart of the town.

Local Amenities:

Wincanton offers a strong mix of essential services, independent shops, supermarkets, cafés, pubs, health facilities and education options, all within easy reach of the site.

Shops & Services: Wincanton is served by several local and regional bus services providing convenient connections to nearby towns and key transport hubs.

Nearby facilities include Tesco Superstore, Boots, the Post Office, convenience stores, barbers, salons, GP surgeries, pharmacies and well-regarded primary schools, along with a wide range of independent retailers.

Transport & Connections:

Road: Excellent access to the A303, connecting to Yeovil, Sherborne, Shaftesbury, Salisbury, Exeter and wider South West road networks.

Rail: Mainline stations at Templecombe, Gillingham and Bruton provide regular services to London Waterloo, Bristol, Bath, Exeter and regional destinations.

Bus Services: Regular routes link the town with Gillingham, Bruton, Castle Cary, Yeovil, Shaftesbury and Sherborne.

Viewings: Strictly by appointment

Documents Available Upon Request:

Brochure

Approval & Conditions

Design & Access Statement

Archaeological Desk-Based Assessment

Heritage Statement

Link to Planning Documents

GDV

Local Comparable’s

Contact the land team to discuss this site in more detail



floorplanfloorplanfloorplanfloorplan

Get in touch

Shirley
151 Wickham Road
Shirley
Croydon
United Kingdom
CR0 8TE
BOOK A VIEWING

Similar Properties

  • Penzance, Cornwall

    £190,000 Guide Price
    Sold STC
    Reserved Matters Approval to create a delightful self-build dwelling close to the Picturesque Cornish Coastline.
  • Yateley, Hampshire

    £200,000 Guide Price
    Sold STC
    Approval for the demolition of an existing garage to create a detached 3-bedroom dwelling with study/dressing room, dedicated parking and a landscaped private garden.
  • Orpington, Kent

    £175,000 Guide Price
    For Sale
    A triangular freehold parcel of land in Orpington. The site backs the local recreation ground. Potential scope for future enhancement, subject to planning consent.