For Sale
£200,000 Guide Price

Yateley, Hampshire

  • Ref: 0f73de39-50c4-4018-93e9-065a69084173
  • Availability: For Sale
  • Tenure: Freehold
Approval for the demolition of an existing garage to create a detached 3-bedroom dwelling with study/dressing room, dedicated parking and a landscaped private garden....
BOOK A VIEWING

Key Features

  • Full Planning permission Granted in 2025
  • Perfect "Self Build Project"
  • Freehold
  • Vacant Site
  • Sought After Location in Yateley


Full property description


Approval for the demolition of an existing garage to create a detached 3-bedroom dwelling with study/dressing room, dedicated parking and a landscaped private garden.

The Approval:

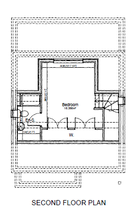
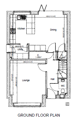
Demolition of a large detached garage to create a detached 3-bedroom, 2.5-storey dwelling with study/dressing room, dedicated parking and a landscaped private garden. (re-use of existing vehicle access)

The Current Site:

The site incorporates part of the gardens of two existing dwellings and associated access. Being sold on a singular title

Site Area Circa: 284.00 SQM

Location:

Situated in a quiet and established residential area of Yateley, a desirable Hampshire village close to the Berkshire and Surrey borders. The site benefits from excellent access to local schools, shops, and open green space.

Local Amenities:

Shops & Services: Yateley Village centre (Co-op, post office, cafés, pharmacy)

Schools: Yateley Manor, Westfields Infant & Junior, Frogmore Community College

Leisure: Yateley Green, Yateley Common Country Park, Horseshoe Lake Activity Centre

Healthcare: Monteagle Surgery and pharmacies within 1 mile

Transport Connections:

Road: Convenient access to A30, M3(Junction 4a) and A331 Blackwater Valley Route

Rail: Nearby stations at Fleet and Blackwateroffering direct services to London Waterloo, Reading and Gatwick

Air: Heathrow Airport approx. 30 minutes by car

Documents Availabe Upon Request:

Brochure

Approval with remaining conditions

GDV

Demolition & Construction Method Statement

Biodiversity Calculation Report

Related Site Information



floorplanfloorplanfloorplan

Get in touch

Shirley
151 Wickham Road
Shirley
Croydon
United Kingdom
CR0 8TE
BOOK A VIEWING

Similar Properties

  • Orpington, Kent

    £185,000 Guide Price
    For Sale
    A triangular freehold parcel of land in Orpington. The site backs the local recreation ground. Potential scope for future enhancement, subject to planning consent.
  • Penzance, Cornwall

    £190,000 Guide Price
    For Sale
    Reserved Matters Approval to create a delightful self-build dwelling close to the Picturesque Cornish Coastline.