For Sale
£440,000 Guide Price

Wickford, Essex

  • Ref: 150b346e-1f9e-4f8e-ad74-174dd9265097
  • Availability: For Sale
Full planning consent for 2 detached bungalows in Wickford’s sought-after Plotlands area. A superb residential development opportunity within an established location....
BOOK A VIEWING

Key Features

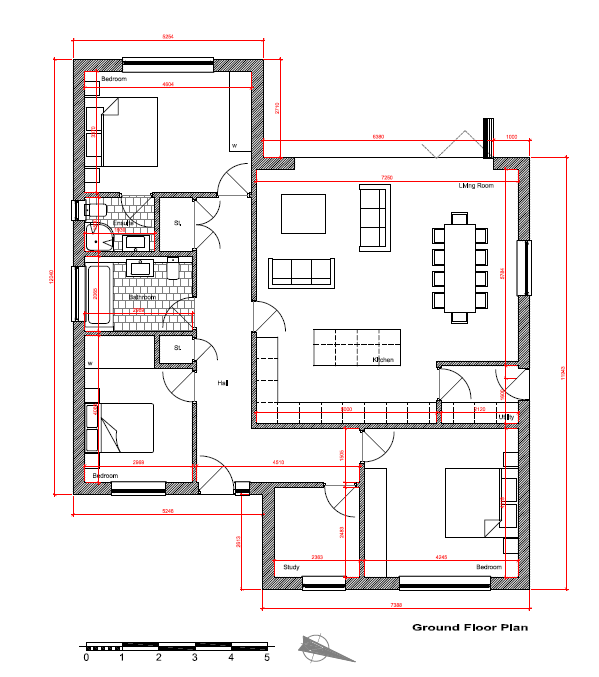
  • Full planning permission for 2 x 3-bed detached bungalows
  • Generous plots within established Plotlands area
  • Total Site Area: Approximately 0.19 hectares (0.48 acres) / 1,936 sqm
  • Low-density scheme reflecting surrounding character


Full property description


Full planning consent for 2 detached bungalows in Wickford’s sought-after Plotlands area. A superb residential development opportunity within an established location.

A residential development opportunity with the benefit of full planning permission for the construction of two detached three-bedroom bungalows, each positioned on generous private plots with off-street parking and private gardens.

The site is situated within the established Plotlands area of Wickford, a location characterised by replacement bungalows and chalet-style dwellings set on spacious plots.

The approved scheme reflects the prevailing character of the area, providing an attractive low-density development well suited to the surrounding residential environment. The dwellings will be well spaced within generous plots, positioned equidistant to the roads and each other. Areas of woodland coppice are located to the rear of the site.

The current Site:

The site is enclosed by a vertical lap board fence with two gated access points. Surrounding development comprises detached bungalows and chalet-style dwellings set within generous plots.

Total Site Area: Approximately 0.19 hectares (0.48 acres) / 1,936 sqm

Location:

The site lies within the Plotlands area of Wickford, a well-established residential location characterised by detached dwellings set on generous plots.

Wickford town centre provides a range of amenities including retail, restaurants, and transport connections.

Train Station:
Wickford Railway Station is approximately 1.5 miles away, providing direct services to London Liverpool Street.

Bus & Road:
Good local road connections via the A129 and A132, providing access to Basildon, Billericay, and the wider Essex road network.

Shopping:
Wickford High Street and the surrounding retail area provide supermarkets, independent retailers, and everyday amenities.

Eating & Drinking:
A range of cafés, restaurants and public houses are available within Wickford town centre and the surrounding area.

Viewings: Roadside

All interested parties are advised to conduct their own due diligence. Subject to contract & availability. All information provided is for guidance only and should be verified independently.

Contact the land team for:

Brochure with planning links & Comparables

Approval & Conditions

Planning statement

Ecology & biodiversity reports

Local Supporting comparables

Site video



floorplanfloorplan

Get in touch

Shirley
151 Wickham Road
Shirley
Croydon
United Kingdom
CR0 8TE
BOOK A VIEWING

Similar Properties

  • Worcester. SOLD

    £450,000 Guide Price
    Sold STC
    Planning Permission has been granted for the conversion of The Gilding House to provide 8 x one-bedroom residential apartments set over four floors.
  • Wakefield

    £400,000 Guide Price
    For Sale
    A city centre development opportunity with planning approval for 25 apartments. (Conversion with 3-storey extension)
  • South Norwood

    £450,000 Guide Price
    For Sale
    Approval granted for change of use from Class E (commercial business and service) to Class C3 (dwellinghouses) to provide three x one-bedroom apartments