For Sale
£550,000 Guide Price

Verdayne Avenue, Shirley

  • Ref: 5493dd0e-bb4f-48dd-b31c-f4cb8c6cda12
  • Type: House
  • Availability: For Sale
  • Bedrooms: 3
  • Bathrooms: 1
  • Reception Rooms: 2
  • Outside Space: Rear Garden
  • Council Tax Band: E
  • Tenure: Freehold
Well presented 3-bed family home with character features, modern bathroom, secluded garden, off-street parking, and extension potential. Close to schools, shops, and excellent transport links....
BOOK A VIEWING

Key Features

  • Three Good Sized Bedrooms
  • Spacious & Well Presented Throughout
  • 17'8 Lounge & 14'3 Dining Room
  • Attactive Fitted Kitchen
  • Well Located For Transport, Schools & Amenities
  • Modern Bathroom Suite
  • Secluded Rear Garden
  • Off Street Parking


Full property description


Well presented 3-bed family home with character features, modern bathroom, secluded garden, off-street parking, and extension potential. Close to schools, shops, and excellent transport links.

Well presented, well proportioned, and perfect for family life! Superbly presented throughout with character features, the accommodation here is ideal for entertaining and family gatherings, and this home needs to be seen to be understood. The ground floor layout includes a bright 17’8 lounge enjoying an open plan aspect to the sociable dining room, which has doors onto and overlooks the rear garden. The attractive fitted kitchen completes the ground floor layout. Moving up to the first floor, you will find a modern family bathroom alongside three well-proportioned bedrooms. With a secluded rear garden, off-street parking to the front, and a well-presented interior, a viewing comes highly recommended.

Extension Potential
Similar homes in the immediate area have been extended to the ground floor and have had the loft space converted to provide additional bedrooms and bathrooms. Scope to do similar certainly exists here, subject obviously to local authority consents.

Location
Verdayne Avenue is a popular tree-lined road, close to many amenities, a location that combines peace and tranquillity with convenience and ease. Within a few hundred yards is the Wickham Road offering a range of local shops, supermarkets, restaurants, cafes, and shops.

Schools
The property is in easy reach of primary and secondary schools. These include Orchard Way Primary, Orchard Park Secondary, The Harris Academy at Benson, St John’s and Trinity, with Royal Russell, Coloma and Whitgift also within easy reach. For full directions, please see the map or contact Allen Heritage Estate Agents in Shirley.

Transport Links
On the nearby Wickham Road, you will find bus routes to Bromley, West Wickham and Croydon town centres as well as East Croydon mainline railway station, which offers fast rail services to Central London and Gatwick Airport. On Wickham Road, you can pick up the new Superloop bus, which serves several destinations, including Heathrow Airport and Bromley South.

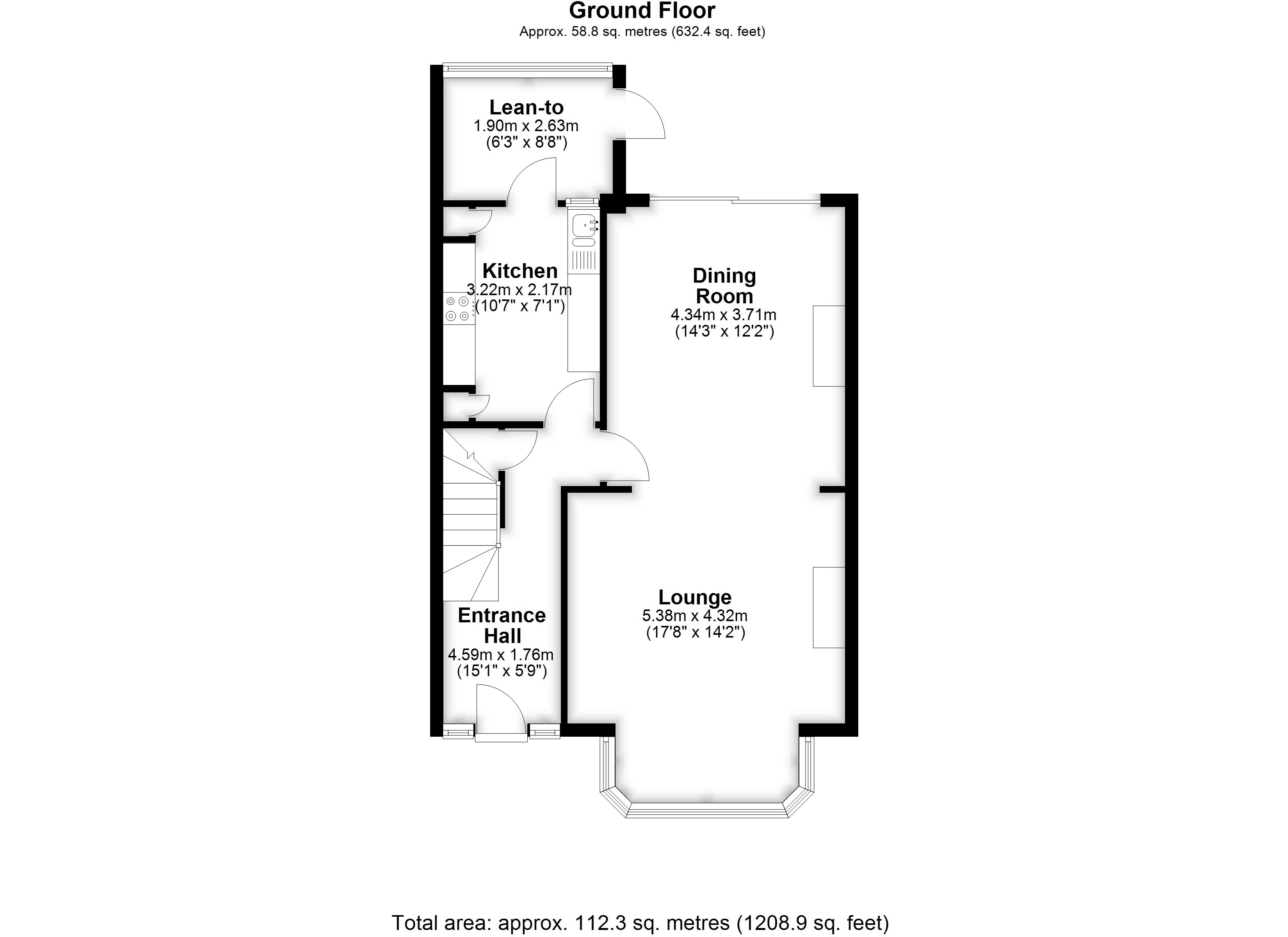
The Ground Floor Accommodation
Entrance Hall       4.59m (15'1") x 1.76m (5'9")
Dining Room        4.34m (14'3") x 3.71m (12'2")
Lounge                 5.38m (17'8") x 4.32m (14'2")
Kitchen                 3.22m (10'7") x 2.17m (7'1")
Lean-to                 2.63m (8'8") x 1.90m (6'3")

The First Floor Accommodation
Landing                                   
Bedroom 1            5.20m (17'1") into bay x 3.14m (10'4")
Bedroom 2            4.28m (14'1") x 3.43m (11'3")
Bedroom 3            3.12m (10'3") x 2.13m (7')
Bathroom             2.40m (7'10") x 2.38m (7'10")



floorplanfloorplan

Get in touch

Shirley
151 Wickham Road
Shirley
Croydon
United Kingdom
CR0 8TE
BOOK A VIEWING

Try our calculators

Mortgage Calculator

Stamp Duty Calculator

Similar Properties

  • Lorne Gardens, Shirley

    £600,000 Guide Price
    Sold STC
    Spacious, well-presented 3 bed semi with lounge, dining room, conservatory, potential for extensions [S.T.P.P. large corner plot. Convenient location, workshop, timber cabin, driveway at rear.
    3 Bedrooms
    1 Bathroom
    2 Receptions
  • Lime Tree Grove, Shirley

    £600,000 Offers Over
    Sold STC
    Impressive Gower C semi detached home with three doubles bedrooms, spacious and well presented throughout, rear garden with a southerly aspect, garage and off street parking, South Side of Shirley.
    3 Bedrooms
    1 Bathroom
    2 Receptions
  • Mistletoe Close, Shirley Oaks Village

    £499,950 Guide Price
    Sold STC
    Three-bedroom end-of-terrace home in secluded cul-de-sac on Shirley Oaks Village. Spacious lounge, attractive 17' kitchen breakfast room, study/playroom, off-street parking, and pleasant rear garden.
    3 Bedrooms
    1 Bathroom
    2 Receptions