For Sale
£3,250,000 Guide Price

Linton, Maidstone, Kent

  • Ref: 1c8d075a-d11d-486a-97c8-086a73ceb123
  • Availability: For Sale
  • Tenure: Freehold
Former farmstead featuring a beautiful barn conversion, five further buildings at various planning stages, an orchard, and three site entrances. Set in 3 acres. A unique opportunity in rural Kent....
BOOK A VIEWING

Key Features

  • A substantial ex-farm site
  • Includes a superb converted barn (c2021)
  • 5 further agricultural buildings at various stages of planning
  • Wetlands pond & Orchard
  • Three private access routes into the site
  • Freehold
  • Sold with vacant possession


Full property description


Former farmstead featuring a beautiful barn conversion, five further buildings at various planning stages, an orchard, and three site entrances. Set in 3 acres. A unique opportunity in rural Kent.

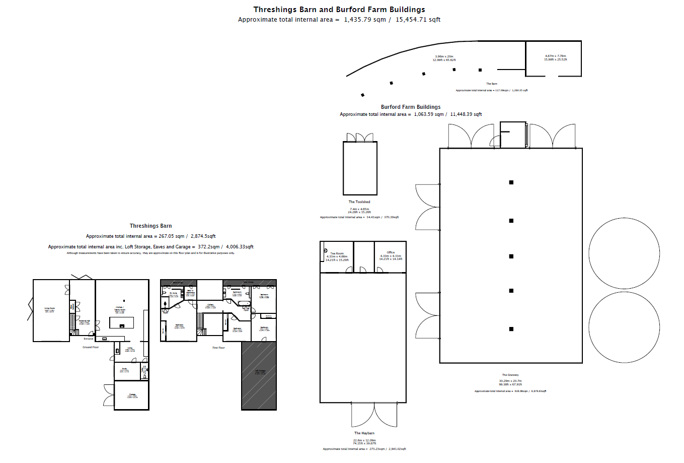
Burford Farm is a former agricultural estate now entering a new chapter. A carefully envisioned collection of ex-agricultural buildings evolving into refined rural homes. At the heart of this transformation lies The Threshing Barn, a striking example of traditional Kentish architecture reimagined for contemporary living.

Planning approval has been granted for the conversion of the prominent Grain Store into two exceptional four-bedroom dwellings, a key step in establishing the site’s residential future. The wider farmstead includes The Granary, The Tool Shed, and other period buildings, each contributing to the site’s authentic rural character and offering scope for future restoration and reuse (subject to the existing, awaiting decisions and additional necessary consents).

A gravel driveway winds through the site, leading to a generous parking area, while a newly created wetland pond enhances biodiversity and softens the transition from farm to new homes.

Burford Farm represents a rare opportunity to be part of a landmark rural redevelopment in the heart of Kent.

Introduction to the site:

  1. The Threshing Barn – A truly exceptional detached four-bedroom barn conversion, completed circa 2021 with meticulous attention to detail and craftsmanship.

  2. The Grain Store – Two large four-bedroom semi-detached dwellings. Planning permission approved.

  3. The Hay Barn – Five three-bedroom terraced dwellings. Newly submitted and awaiting decision.

  4. The Granary – Three-bedroom detached dwelling. Permission expired.

  5. The Tool Shed – One-bedroom detached dwelling. Re-submitted and awaiting decision.

  6. The Implement Store – Two-bedroom detached dwelling. Permission expired.

  7. The OrchardDevelopment potential, subject to planning permission.

  8. The Wetlands – A landscaped ecological feature supporting local biodiversity.

Additional Information:

Tenure: Freehold
Utilities: On-site
Sale: The seller prefers to sell the site as a whole entity

Location:

Burford Farm lies along Redwall Lane — a country lane linking Linton Hill (A229) with Hunton Hill — around six miles south of Maidstone and just 1.5 miles from Coxheath village centre.

The nearby A229 provides excellent road links north to the M20 and M2 motorways and south towards the A21 and the south coast. Regular bus services operate from East Street, Hunton, with routes to Maidstone town centre.

For rail commuters, Maidstone East and Staplehurst stations both offer mainline services to London Victoria and Charing Cross.

A detailed site brochure and planning documentation are available on request from the Land Team.



floorplan

Get in touch

Shirley
151 Wickham Road
Shirley
Croydon
United Kingdom
CR0 8TE
BOOK A VIEWING