For Sale
£900,000

Wickham Court Road, West Wickham, BR4

  • Ref: 0ee39b6f-964f-4873-b082-f656dae08b97
  • Type: House
  • Availability: For Sale
  • Bedrooms: 4
  • Bathrooms: 3
  • Reception Rooms: 2
  • Outside Space: Garden
  • Council Tax Band: F
  • Tenure: Freehold
Impressive family home in West Wickham with spacious accommodation. Stunning open plan kitchen, four bedrooms, three bathrooms, double garage, luxury finishes, close to High Street and Schools....
BOOK A VIEWING

Key Features

  • Impressive Four Bedroom Family Home
  • LANGLEY SCHOOLS & Oak Lodge within 0.9 of a mile
  • Stunning Open Plan Kitchen Dining Room
  • Superbly Presented Throughout
  • Three Luxurious Bathroom Facilities
  • Convenient For West Wickham High Street & Station
  • Garage & Off Street Parking
  • Delightful Garden, Utility Room & Much More!


Full property description


Impressive family home in West Wickham with spacious accommodation. Stunning open plan kitchen, four bedrooms, three bathrooms, double garage, luxury finishes, close to High Street and Schools.

This impressive family home is situated in a popular residential location in West Wickham, close to many amenities. Superbly presented throughout, the property provides spacious and bright, family-sized accommodation. The ground floor has been extended at the rear, where you will find a remarkable open plan 27’ kitchen dining room, a spacious and sociable space ideal for entertaining friends and for everyday family life. The 17’10 lounge is at the front and is a perfect room to retreat to!

Three generously proportioned bedrooms can be found up on the first floor, along with the luxurious family bathroom. The fourth bedroom is within the professionally converted loft space, which also benefits from a modern en-suite shower room. To the rear of the property, you will find a very pleasant garden, with a double garage at the end, which could be converted or rebuilt to provide a granny annex-style set up, a great home office, gym, or entertainment room. With off-street parking on the neat and tidy frontage, a handy utility room, and a luxurious ground-floor shower room, this stunning family home is well worth viewing.

Specification
The property has been finished to a very high standard and has a luxurious feel throughout that needs to be seen to be fully appreciated. Examples of this high-calibre refurbishment work include the installation of a high-end kitchen with Corian work surfaces and appliances built in, a large ground-floor shower room, a four-piece family bathroom with electric underfloor heating, and a handy en-suite shower room on the top floor. You will also find bespoke fitted shutters, good quality flooring, including Amtico on the ground floor, underfloor heating in the dining area, CCTV, and ample built-in storage.

The Enviable Location
Occupying a prominent corner plot on the popular Wickham Court Road, this family home is convenient for many amenities. West Wickham High Street is within a few hundred yards, offering an abundance of amenities including Marks and Spencer and Sainsbury's supermarkets as well as numerous boutiques, independent shops, coffee houses, and restaurants. West Wickham mainline railway station is within easy reach too [approx half of a mile], as are bus routes to Bromley town centre and many other destinations. For full directions, please see the map or contact Allen Heritage Estate agents.

Schools In The Area
Highly regarded schools are within easy reach of this property. Oak Lodge Primary and St Davids Primary are both within approximately 0.75 of a mile, Langley Boys and Langley Girls are both secondary schools within around 0.9 of a mile [measurements as the crow flies].

The Ground Floor Accommodation
Porch

Entrance Hall 5.51m (18'1") x 2.14m (7')
Lounge 5.39m (17'8") into bay x 3.66m (12')
Kitchen/Living/Dining Room 8.27m (27'2") max x 5.89m (19'4")
Utility Room 3.49m (11'5") x 2.54m (8'4")
Ground Floor Shower Room 2.31m (7'7") x 1.90m (6'3")

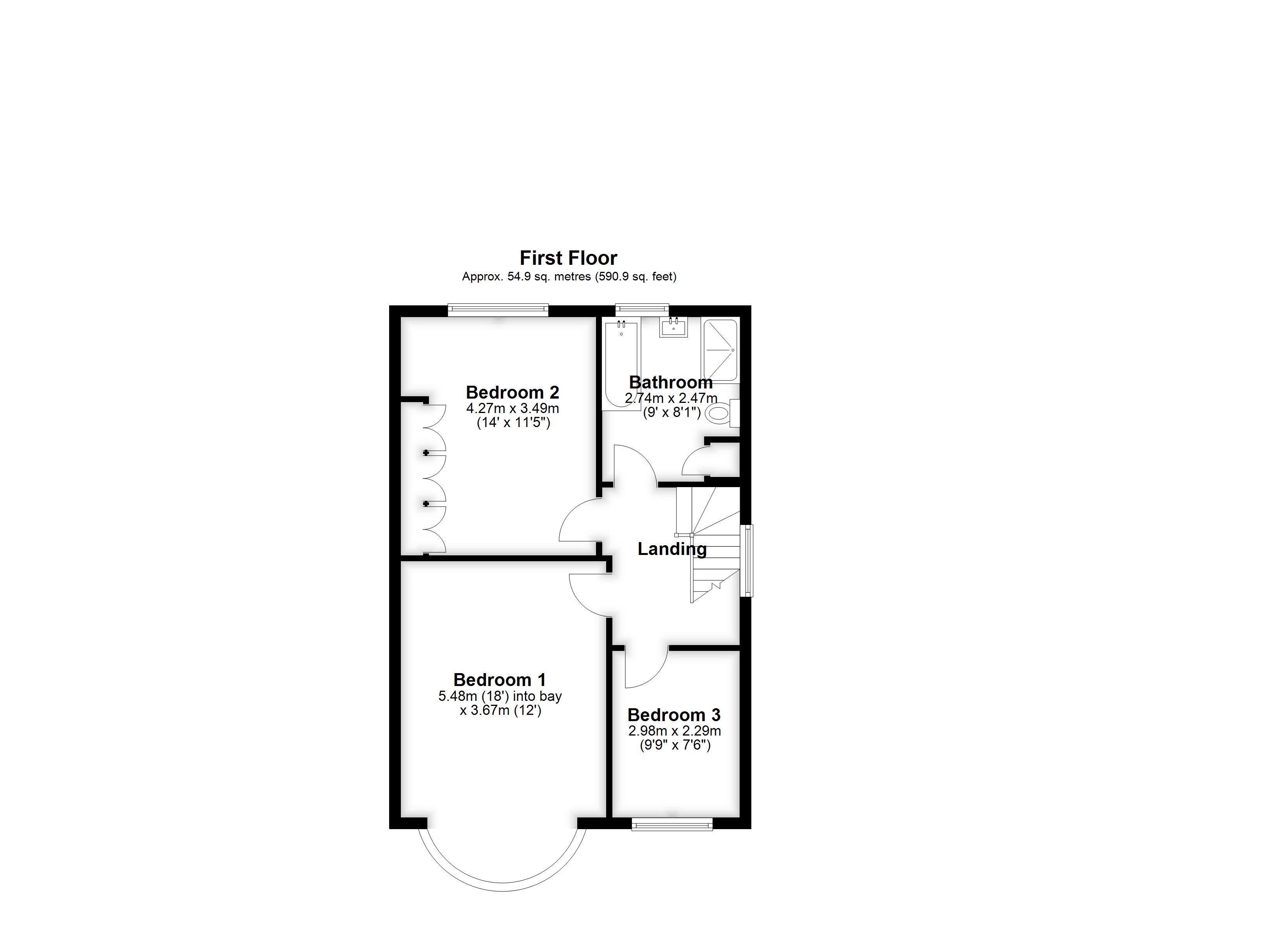
The First Floor Accommodation
Landing

Bedroom 1 5.48m (18') into bay x 3.67m (12')
Bedroom 2 4.27m (14') x 3.49m (11'5")
Bedroom 3 2.98m (9'9") x 2.29m (7'6")
Bathroom 2.74m (9') x 2.47m (8'1")

The Second Floor Accommodation
Bedroom 4
 5.70m (18'9") x 3.15m (10'4")
En-suite Shower Room



floorplanfloorplanfloorplan

Get in touch

West Wickham
131 High Street
West Wickham
United Kingdom
BR4 0LU
BOOK A VIEWING

Try our calculators

Mortgage Calculator

Stamp Duty Calculator

Similar Properties

  • Addisons Close, Shirley

    £845,000 Offers Over
    For Sale
    Impressive detached residence, extremely well presented throughout, spacious and bright accommodation throughout, ideal for large and growing families. Located in a peaceful yet convenient cul-de-sac.
    4 Bedrooms
    1 Bathroom
    4 Receptions
  • Kersey Drive, South Croydon

    £780,000 OIRO
    Sold STC
    A really impressive four bedroom detached residence in a highly sought after prestigious location
    4 Bedrooms
    2 Bathrooms
    2 Receptions
  • Hardcourts Close, West Wickham, BR4

    £825,000
    Sold STC
    A superbly located detached residence tucked away in a small peaceful cul-de-sac
    4 Bedrooms
    2 Bathrooms
    3 Receptions